基于AutoForm改善侧围后保部位成形工艺方案设计
文/黄祥坤,彭本栋,胡辉·奇瑞汽车股份有限公司
在CAE技术不断发展的当下,CAE分析及成形面品虚拟评估成了覆盖件设计、生产的强大工具,如何缩短模具制作和调试周期,降低制作成本,提升板件质量是冲压模具行业一直在研究的一项课题。
随着工业水平的提升和人们审美要求的不断苛求,要求车身外观质量必须精细化提升来满足大众消费者需求。侧围后保部位A面区域与后保匹配外观质量主要体现在两个方面,一方面是侧围A面区域的冲压件质量,另一方面是后保与侧围匹配安装的整齐度。汽车侧围外板拉延成形时,为了外观棱形滑移线成形质量要求,拉延工序冲压方向相对车身方向要旋转一角度,后保部位在拉延工序存在负角,不能按产品形状直接拉延到位,需要先改变形状拉延成形,即过拉延,然后通过后工序整形至产品形状。拉延工序和整形工序是影响侧围外观质量和匹配整齐度的关键工序,前期车型在现场生产检测时发现,拉延工序板件的面品质量没有问题,但经过整形工序后,侧围板件的外观面出现了瘪塘,影响车身外观品质,后保安装匹配面因材料流动,成形R角二次硬化导致后保安装面不平整影响后保安装整齐度。
为了解决上述现场生产问题,本文通过工艺方案分析,利用AutoForm软件进行CAE分析及面品虚拟评估,现场效果验证对比,介绍有效改善侧围后部成形的工艺方案设计。
产品信息及分析条件
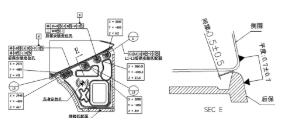
图1是某车型侧围后保部位零件尺寸及匹配要求,外观面与后保匹配后的平度要求为(0.7±0.7)mm,非外观面部位有4个凸包,凸包部位是后保安装匹配面,凸包面上的孔为后保安装孔,边界周圈为焊接匹配面,后保部位还有一处车身定位孔,该孔为翻孔。该零件材质为DC56D+Z,料厚0.7mm。

图1 某轿车侧围后保部位尺寸及匹配要求
工艺方案分析
前期车型现场问题剖析
图2为前期某车型侧围后保部位工艺造型,SEC A为后保部位工艺造型断面,对过拉延部位断面分析,过拉延部位产品弧长L=58.41mm,过拉延工艺造型弧长L1=48.14mm,过拉延的弧长差比例为(L-L1)/L1=21.3%。

图2 前期某侧围后保部位工艺造型
图3为前期某车型侧围后保部位整形后板件现场效果,从4处凸包后保安装面可以看出,在整形过程中,过拉延的弧长差比例为21.3%,不能完全通过材料延展实现成形,过拉延在整形过程中,从整形附近拉延成形到位有材料流动,A面部位因材料流动出现瘪塘缺陷,后保安装凸包台阶因走料R角二次成形,硬化痕迹保留在后保安装匹配上,导致后保安装匹配面不平整,直接影响后保安装后的整齐状态。A面瘪塘及后保安装匹配不整齐,都会留存到整车外观缺陷,从图4整车匹配后的状态可以看出,这种状态已不满足当下市场对车身精细化的要求。

图3 前期某侧围后保部位整形后板件现场效果

图4 前期某侧围后保部位整车匹配效果
工艺方案设计
该侧围生产线和备用线都为5工序机床,工艺方案按5工序排布,OP10拉延,OP20修边,OP30修边,OP40整形+冲孔,OP50翻孔+冲孔,OP20~OP50工序内容图纸具体如图5所示。

图5 侧围后保部位工艺方案排布
后保部位改善工艺方案分析
⑴工艺造型改善分析。图6为某车型侧围后保部位改善后工艺造型,SEC B为后保部位工艺造型断面,对过拉延部位断面分析,过拉延部位产品弧长L=111.16mm,过拉延工艺造型弧长L1=110.52mm,过拉延的弧长差比例为(L-L1)/L1=0.58%,过拉延工艺造型的弧长与产品的弧长相差无几,这样从理论上保证在整形工序不需要从整形区域外进料,拉延工序成形到位的部位不会发生材料的流动。

图6 某侧围后保部位改善工艺方案
⑵AutoForm软件CAE模拟验证。
1)整形工序AutoForm分析条件说明。如图7所示,侧围后保部位过拉延的部位设计成整形刀块,整形刀块两侧设置压料板,沿型整形部位压料板设置30mm符型强压,压料板压力设置78t,整形刀块和压料板的型面为最终产品形状,压料板的行程为80mm,整形刀块的行程为40mm。

图7 AutoForm工具体设置
2)侧围后保区域A面面品分析评估。如图8、图9所示,采用AutoForm软件油石评价功能,虚拟评估侧围后保部位A面的成形质量,设定A面变形量不超过±0.03mm的标准评估,油石的打磨方向按水平和平行后保轮廓两个方向评估,采用改善后工艺方案,整形工序A面区域与拉延工序A面区域的面品质量满足设定标准范围,在整形过程中,A面的面品质量没有明显的变化,从理论上规避了后保区域A面在整形工序变形的风险。

图8 拉延工序油石面品检查

图9 整形工序油石面品检查
3)侧围后保区域整形起皱分析评估。如图10所示,通过AutoForm软件起皱分析评价,工艺造型增加了过拉延弧长,在整形过程和整形到底时,后部区域非外观面、非匹配面区域有轻微起皱,后保安装匹配面、焊接匹配面无起皱,经评估,轻微起皱不影响制件的外观品质,也不影响制件的安装及匹配,对车身功能无影响,该状态是可以接受的,满足设计要求。

图10 整形工序起皱检查
现场效果验证
图11为改善工艺方案现场板件状态,后保区域A面无明显瘪塘缺陷,非外观区域存在轻微起皱,起皱区域不在安装匹配面,不影响板件的整车匹配及功能,板件的状态与CAE分析模拟状态一致。图12是整车匹配效果图,后保与侧围装配整齐度符合要求,满足整车匹配DTS公差要求,达到了设计预期。

图11 现场板件状态

图12 整车匹配效果图
结束语
侧围是车身覆盖件中最复杂的件,在当前车身短周期的开发过程中,如何缩短模具的制作和调试周期,降低制作成本,提升板件质量是冲压模具行业一直在研究的一项课题。本文通过AutoForm对侧围后保部位成形分析,采用油石功能对A面区域面品质虚拟评估,对非外观面、非安装匹配面区域的起皱检查评估,在设计阶段对方案进行优化,对板件的成形风险进行规避,避免模具制作阶段大量的设计变更,缩短了模具开发周期,降低了模具开发成本,体现了CAE模拟对现场调试指导作用的重要性。



随着工业水平的提升和人们审美要求的不断苛求,要求车身外观质量必须精细化提升来满足大众消费者需求。侧围后保部位A面区域与后保匹配外观质量主要体现在两个方面,一方面是侧围A面区域的冲压件质量,另一方面是后保与侧围匹配安装的整齐度。汽车侧围外板拉延成形时,为了外观棱形滑移线成形质量要求,拉延工序冲压方向相对车身方向要旋转一角度,后保部位在拉延工序存在负角,不能按产品形状直接拉延到位,需要先改变形状拉延成形,即过拉延,然后通过后工序整形至产品形状。拉延工序和整形工序是影响侧围外观质量和匹配整齐度的关键工序,前期车型在现场生产检测时发现,拉延工序板件的面品质量没有问题,但经过整形工序后,侧围板件的外观面出现了瘪塘,影响车身外观品质,后保安装匹配面因材料流动,成形R角二次硬化导致后保安装面不平整影响后保安装整齐度。